
| Артикул | 4M525 |
| Количество этажей: | 2 |
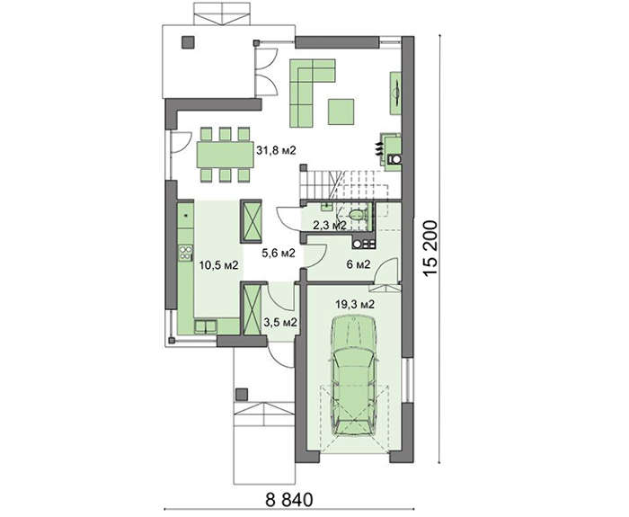
| Общая площадь: | 147.70 м2 |
| Жилая площадь: | 100.40 м2 |
| Высота дома: | 8.40 м |
| Высота потолка: | 2.80 м |
| Угол наклона кровли: | 20 ° |
| Площадь крыши: | 157.60 м2 |
| Кубатура: | 437.00 м3 |
| Количество спален: | 4 |
| Количество санузлов: | 2 |
| Гараж: | Гараж на одно авто |
| Минимальный размер участка(длина): | 17.00 м |
| Минимальный размер участка(ширина): | 22.00 м |
| Площадь застройки: | 117.5 м2 |
Материалы: | |
| Стены: | газобетон, керамические блоки |
| Перекрытие: | монолитное перекрытие |
| Кровля: | керамическая черепица, металлочерепица, цементно-песчаная черепица |
| Фундамент: | монолитная лента |
|
|
|
Ваш помощник свяжется с Вами в ближайшее время. |
|
| Артикул | 4M525 |
| Количество этажей: | 2 |
| Общая площадь: | 147.70 м2 |
| Жилая площадь: | 100.40 м2 |
| Высота дома: | 8.40 м |
| Высота потолка: | 2.80 м |
| Угол наклона кровли: | 20 ° |
| Площадь крыши: | 157.60 м2 |
| Кубатура: | 437.00 м3 |
| Количество спален: | 4 |
| Количество санузлов: | 2 |
| Гараж: | Гараж на одно авто |
| Минимальный размер участка(длина): | 17.00 м |
| Минимальный размер участка(ширина): | 22.00 м |
| Площадь застройки: | 117.5 м2 |
Материалы: | |
| Стены: | газобетон, керамические блоки |
| Перекрытие: | монолитное перекрытие |
| Кровля: | керамическая черепица, металлочерепица, цементно-песчаная черепица |
| Фундамент: | монолитная лента |
|
|
|
Ваш помощник свяжется с Вами в ближайшее время. |
|