Deprecated: strripos(): Non-string needles will be interpreted as strings in the future. Use an explicit chr() call to preserve the current behavior in /home/dom4m/web/dom4m.ru/public_html/config.inc.php on line 468

Deprecated: strripos(): Non-string needles will be interpreted as strings in the future. Use an explicit chr() call to preserve the current behavior in /home/dom4m/web/dom4m.ru/public_html/config.inc.php on line 468
Смета проекта от сметчиков компании ДОМ4М
 С правилами ознакомлен(а) Авторизация
Авторизация нужна для сохраниения Вашего "Избранного".
Войти через:

Ваша Смета  позволит Вам:

Стоимость сметной документации составляет 10500 рублей.

Сметная документация предоставляется с подробно расписанными строительными материалами, указано их количество, а также приведен перечень предстоящих работ и их объем, в виде таблицы в формате *.xls. – без цен.

При заказе проекта дома в компании DOM4M смета составляется в течении 10 дней.

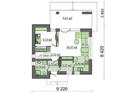
Первый этаж:
Проект дома с гаражом и дополнительной ночной зоной
Первый этаж:
Проект дома с гаражом и дополнительной ночной зоной
Второй этаж:
Проект дома с гаражом и дополнительной ночной зоной
Второй этаж:
Проект дома с гаражом и дополнительной ночной зоной
  • 4m108
37 000 руб
Цена: 37 000руб
Цена: 37 000 руб
Площадь: 245.70 m2

4 3 2

  • 4m114
32 800 руб
Цена: 32 800руб
Цена: 32 800 руб
Площадь: 111.00 m2

3 1 0

Первый этаж:
Проект дома с гаражом и кабинетом на первом этаже
Первый этаж:
Проект дома с гаражом и кабинетом на первом этаже
Второй этаж:
Проект дома с гаражом и кабинетом на первом этаже
Второй этаж:
Проект дома с гаражом и кабинетом на первом этаже
  • 4m138
44 600 руб
Цена: 44 600руб
Цена: 44 600 руб
Площадь: 200.50 m2

3 3 1

Первый этаж:
Проект дома с оригинальной мансардой и гаражом
Первый этаж:
Проект дома с оригинальной мансардой и гаражом
Второй этаж:
Проект дома с оригинальной мансардой и гаражом
Второй этаж:
Проект дома с оригинальной мансардой и гаражом
  • 4m140
36 400 руб
Цена: 36 400руб
Цена: 36 400 руб
Площадь: 182.70 m2

3 2 1

Первый этаж:
Проект дома на две семьи с общим входом
Первый этаж:
Проект дома на две семьи с общим входом
Второй этаж:
Проект дома на две семьи с общим входом
Второй этаж:
Проект дома на две семьи с общим входом
  • 4m150
42 600 руб
Цена: 42 600руб
Цена: 42 600 руб
Площадь: 193.90 m2

4 4 0

  • 4m172
32 700 руб
Цена: 32 700руб
Цена: 32 700 руб
Площадь: 158.00 m2

3 2 2

Первый этаж:
Проект небольшого светлого дома с гаражом, стильными большими окнами
Первый этаж:
Проект небольшого светлого дома с гаражом, стильными большими окнами
Второй этаж:
Проект небольшого светлого дома с гаражом, стильными большими окнами
Второй этаж:
Проект небольшого светлого дома с гаражом, стильными большими окнами
  • 4m200
32 000 руб
Цена: 32 000руб
Цена: 32 000 руб
Площадь: 111.40 m2

4 2 1

Первый этаж:
Чайный домик 100 m²
Первый этаж:
Чайный домик 100 m²
Второй этаж:
Чайный домик 100 m²
Второй этаж:
Чайный домик 100 m²
  • 4m210
30 400 руб
Цена: 30 400руб
Цена: 30 400 руб
Площадь: 98.34 m2

3 3 0

Первый этаж:
Проект небольшого дачного коттеджа с угловым окном в кухне
Первый этаж:
Проект небольшого дачного коттеджа с угловым окном в кухне
Второй этаж:
Проект небольшого дачного коттеджа с угловым окном в кухне
Второй этаж:
Проект небольшого дачного коттеджа с угловым окном в кухне
  • 4m236
32 400 руб
Цена: 32 400руб
Цена: 32 400 руб
Площадь: 115.90 m2

3 2 0

Первый этаж:
Проект коттеджа с мансардой, стеклянным эркером и гаражом
Первый этаж:
Проект коттеджа с мансардой, стеклянным эркером и гаражом
Второй этаж:
Проект коттеджа с мансардой, стеклянным эркером и гаражом
Второй этаж:
Проект коттеджа с мансардой, стеклянным эркером и гаражом
  • 4m238
42 700 руб
Цена: 42 700руб
Цена: 42 700 руб
Площадь: 200.30 m2

3 5 1

Смета проекта: есть ли необходимость составления финансового документа?

  Смета проекта, нужна ли смета проекта, зачем платить за расчет этого документа? Ранее такие вопросы никто бы и не задал, потому что смета входила в состав проектной документации, о необходимости столько важного документа никто не задумывался. Надо, значит, надо. Кто рискнет открыть свое дело без тщательного расчета всех трат и рисков. Точно так же никто не возьмет в руки лопату для рытья фундамента без основного финансового документа — сметы проекта.

Смета проекта: данные полученные из документа

  Важность сметной документации можно подкрепить данными, которые заказчик получает из сметного расчета:

  1. Основное назначение сметы проекта — получить информацию о стоимости всего строительства. Первым делом сюда входит цена на основные строительные материалы, которые заложены в проекте. Добавляется стоимость вспомогательных материалов. Перечень составляется на основании укрупненных расчетов, правила выполнения которых определяются методикой составления сметной документации.
  2. Сметная документация включает величину затрат на выполнение всех этапов стройки. Профессионализм сметчика проявляется в умении предусмотреть все операции и правильно их выбрать из предложенного перечня. Эти данные напрямую влияют на окончательную стоимость проекта.
  3. Из сметной документации получают сведения о количестве требуемых для выполнения строительства специалистов и профессиональном уровне их подготовки.
  4. Суммированный расчет дает информацию о времени, которое потребуется для строительства как всего дома, так и выполнения каждого этапа.

  Приведенные данные включены в смету проекта и позволяют не только предусмотреть бюджет для выполнения строительства. После получения сметной документации открывается вся скрытая финансовая информация по стройке:

Смета проекта: можно ли доверять документу?

  Скептику получив столько объемную информацию самое время возмутиться, насколько сметные данные достоверные, а сама смета проекта достойна доверия?

  Каждая страна по-своему подходит к составлению сметы. Важность документа трудно переоценить, он используется для расчета между организациями, по нему определяется правильность вложения денежных средств и рациональное расходование бюджета. Смета проекта позволяет из нескольких претендующих на строительство организаций выбрать наиболее выгодную. С ее помощью можно проанализировать статьи затрат и оценить пути получения экономии.

  На постсоветском пространстве сметная документация рассчитывается на основании методики укрупненных расчетов, которые базируются на опыте не одного поколения строителей и максимально отражают действительность. Все то, что в нашем постоянно меняющемся времени предусмотреть невозможно, выделяется в статью непредвиденные расходы, доля которых определяется в процентах.

Отзывы об этом каталоге проектов
Чтобы оставить отзыв, Вы должны либо заполнить поля ниже, либо авторизироваться на сайте.
Загрузить фото, до 5 штук
Ваша оценка:
Категории
© 2010-2021 Dom4M. Все права защищены
This site is protected by reCAPTCHA and the Google Privacy Policy and Terms of Service apply